TWINSYWOOD
Дом для временной установки в городской урбанистической среде в ограниченном пространстве. Площадь необходимая для установки дома 15.7 м2, 5.6 х 2.8 м.
Конструкция дома предназначена для многоразовой транспортировки.
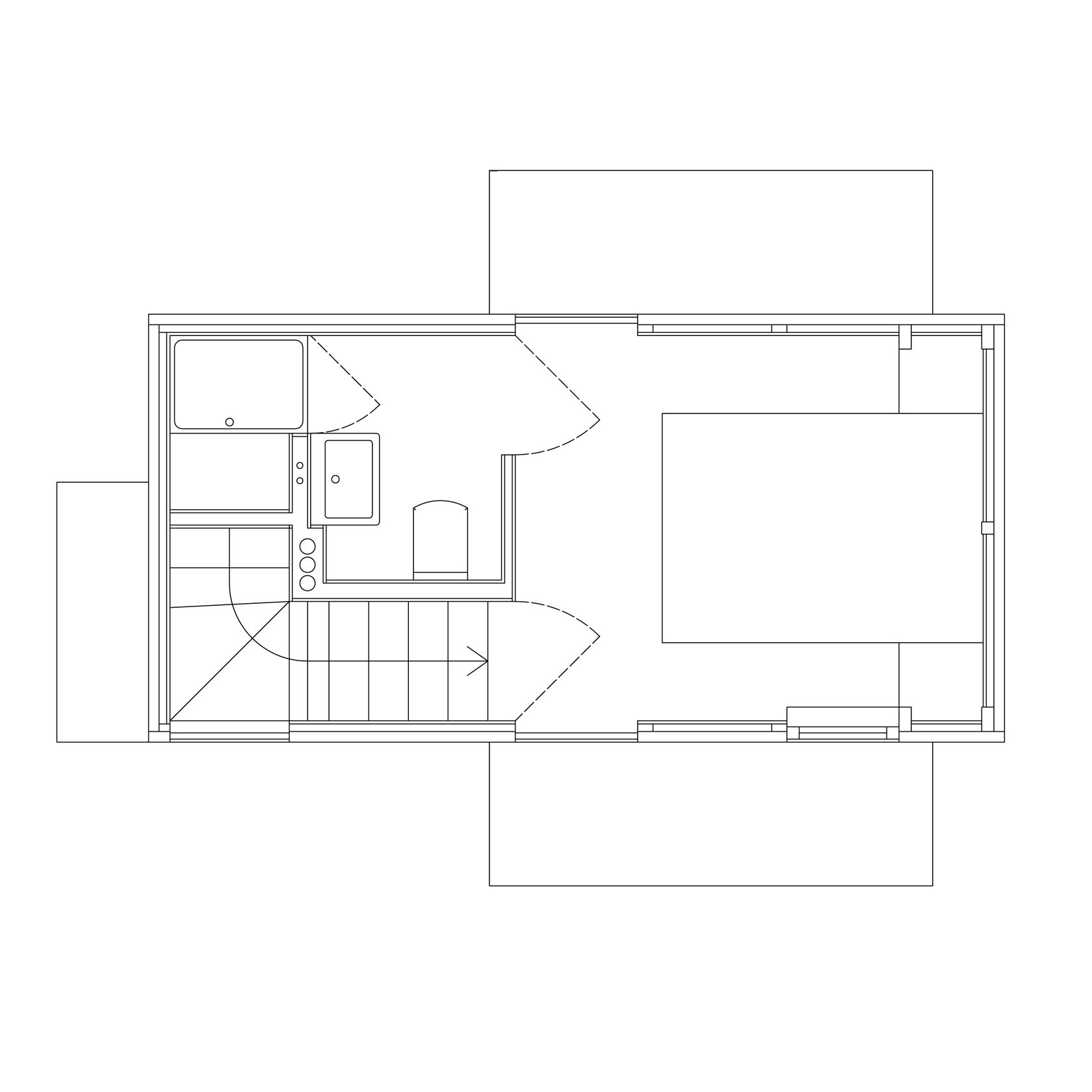
1этаж
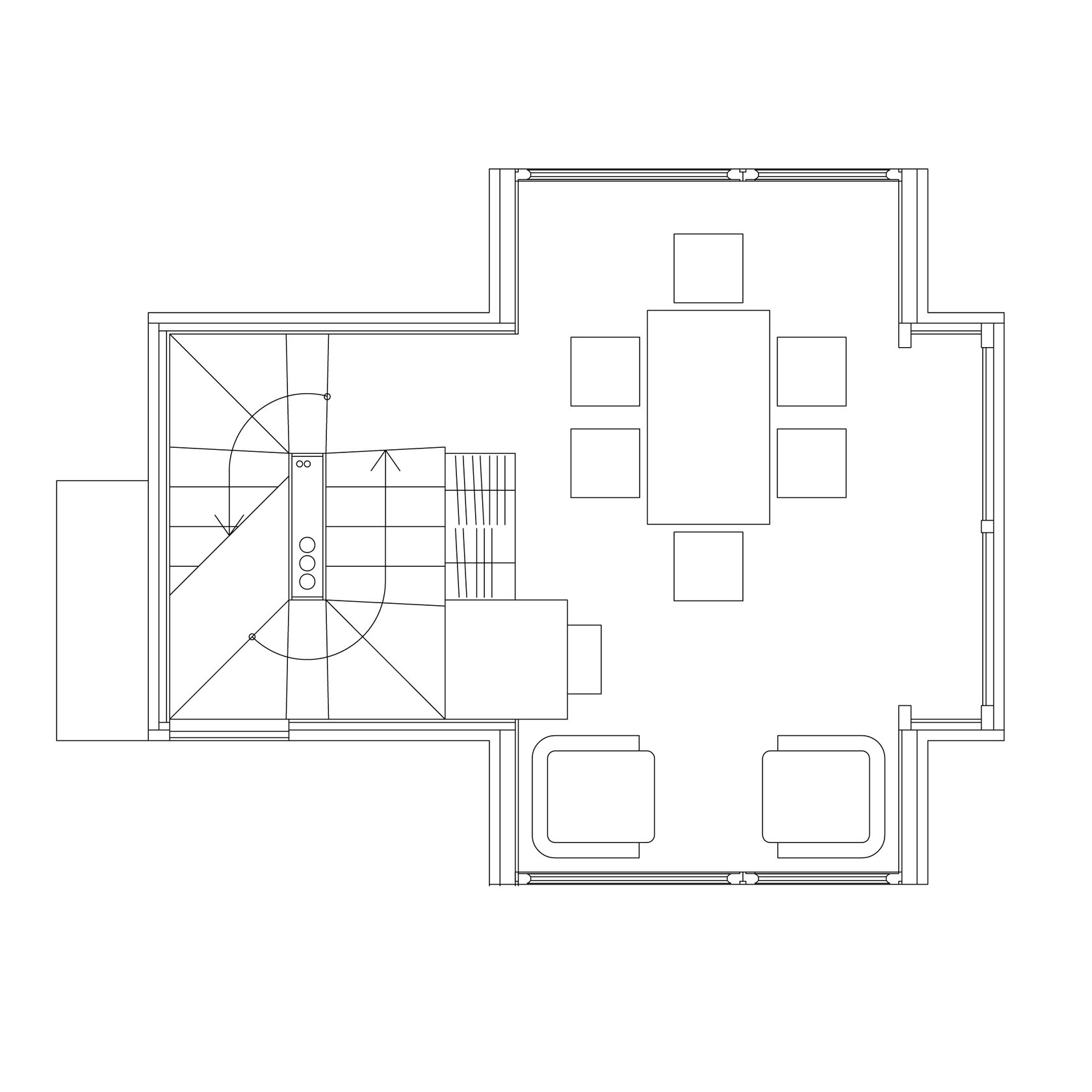
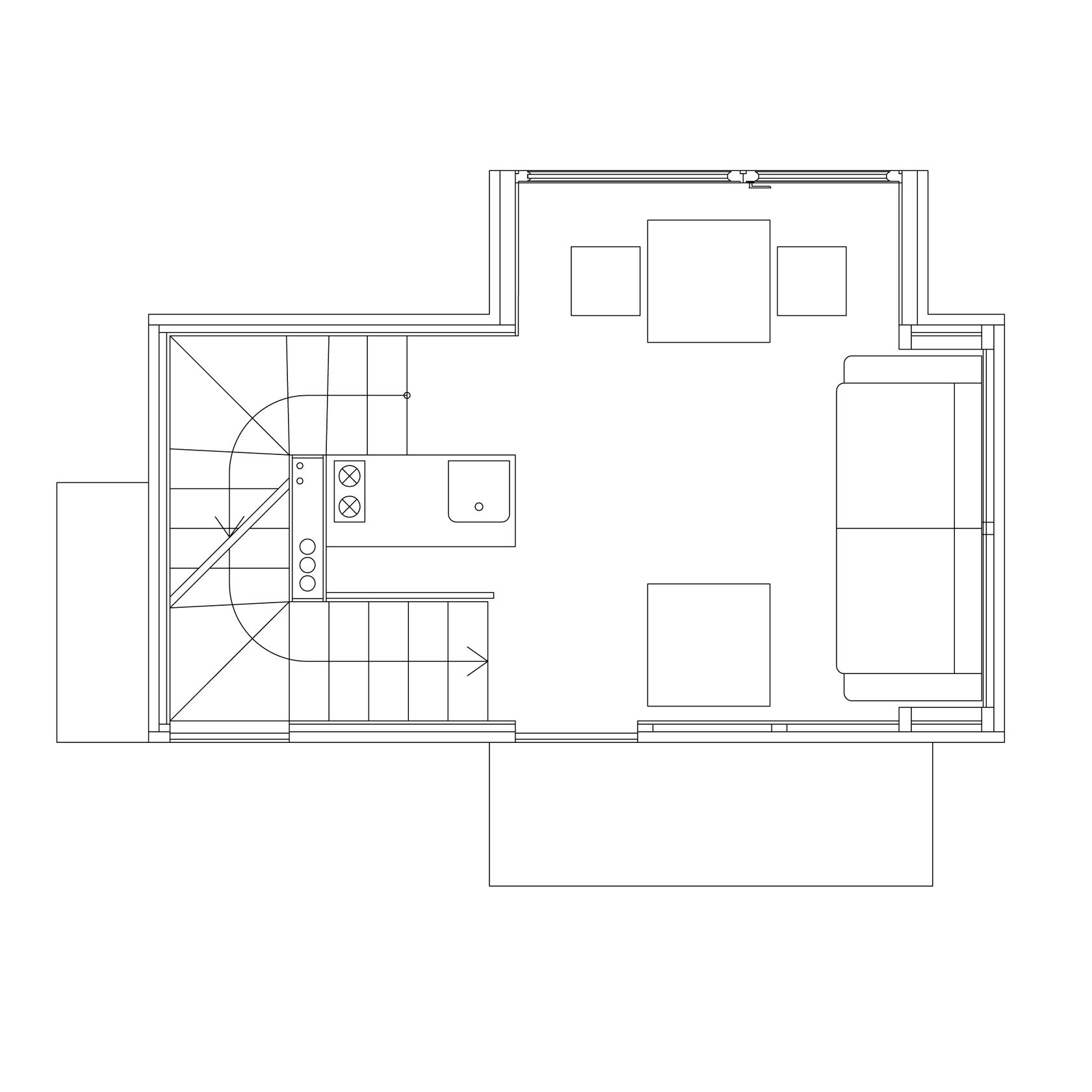
2этаж
3этаж
0этаж
инженерное
оборудование
инженерное
оборудование
с/у
с/у
с/у
Спальня
Кухня
столовая
Комната
с/у
вход
1
2
1
2
B
A
B
A
0.000
+1.850
+4.700
+7.930
8 m2
12.5 m2
14.5 m2
3.1 m2

1 m2

2.9 m2
Полезная площадь 42 m2
+11.300
1 этаж
2 этаж
3 этаж
0 этаж
2
7
8
4
1
2
1
2
B
A
A
B
6
5
3
1
9
10
1
2
1
2
1. Прихожая
2. Гостевой санузел
3. Студия
4. Кухня столовая
5. Спальня
6. Санузел
Сервисные помещения
7. Насосная
8. Дизель-генераторная
9. Танк чистой воды
10. Танк грязной воды
Лестница
Экспликация помещенй
2.9 м2
1 м2
14.5 м2
12.5 м2
8 м2
3.1 м2
8.7 м2




6.4 м2
Общая площадь 57.1 м2
Полезная площадь 42 м2
Транспортировка двух частей дома на контейнеровозах
Проект разработан на стадии запуска производства действующего образца.
TWINSYWOOD
Идея и проектирование LEVINGROUP для производственного проекта DKT HOUSE.
В нашей компании Вы можете заказать индивидуальные проекты с реализацией и проекты для строительства сторонними подрядчиками

Индивидуальное проектирование

В ходе своей деятельности мы выработали два основных подхода к оптимизации процессов строительства, которые определяют необходимый объем проектных работ:
1. Оптимизация процессов производства конструкций для последующей сборки.
Оптимизация времени монтажа конструкций на строительной площадке, и реализации объектов.
(использование серийных проектов и их адаптация)
2. Оптимизация процессов строительства и используемых материалов при полном цикле строительных работ на строительной площадке. Оптимизация стоимости строительных работ и материалов
(полный цикл индивидуального проектирования).
Показать еще