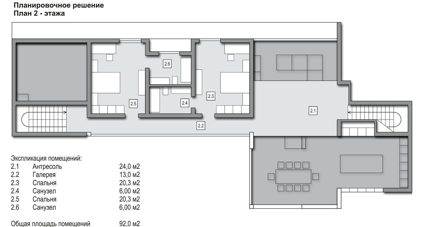
Индивидуальный жилой дом с отапливаемой площадью 400 м2. Несущая конструкция дома - первый этаж монолитный каркас, второй этаж фахверковая конструкция. Фасады - облицовка клинкерным кирпичом.
Процесс строительства. Производство монолитных работ апрель - май 2022 г.
Связаться с авторами
Оставьте номер телефона и авторы проекта свяжутся с вами
Нажимая на кнопку, вы даете согласие на обработку своих персональных данных